Adosado en venta en Mijas Costa

850.000 €
  • Ref: 430-11604P-DUP
  • Localización: Mijas Costa
  • Área:
  • Tipo: Adosado
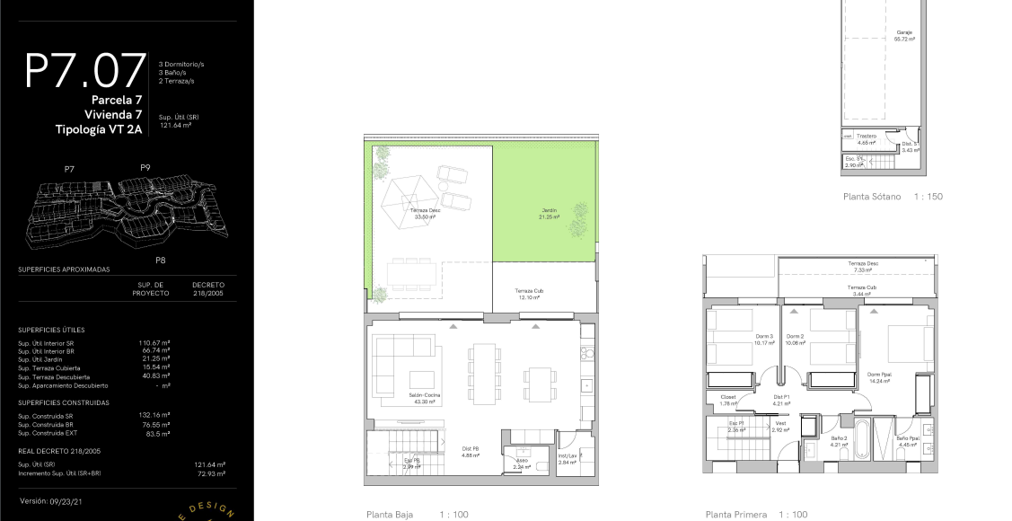
  • Dormitorios: 3
  • Baños: 2
  • Const.: 132 m²
  • Interior: 110 m²
  • Año de construcción: 2024
Imprimir PDF

Características de la propiedad

  • Referencia: 430-11604P-DUP
  • Tipo: Adosado
  • Localización: Mijas Costa
  • Dormitorios: 3
  • Baños: 2
  • Construido m²: 132
  • Interior m²: 110
  • Terraza m²: 83
  • Piscina: Comunitario
  • Jardín: Privado
  • Garaje: Cochera
  • Año de construcción: 2.024
  • Orientación: SO
  • Terraza privada
  • Pista de tenis / pádel
  • Servicios cercanos
  • Aire acondicionado
  • Vistas al mar
  • Cocina totalmente equipada
  • Dentro del Golf Resort
  • Piscina cubierta
  • Piscina climatizada
  • Cerca de playa / mar
  • Cerca del golf
  • Terraza descubierta
  • Gimnasio
  • Vistas parciales al mar
  • Balneario – SPA
  • A estrenar
  • Comunidad cerrada

Obtén más información